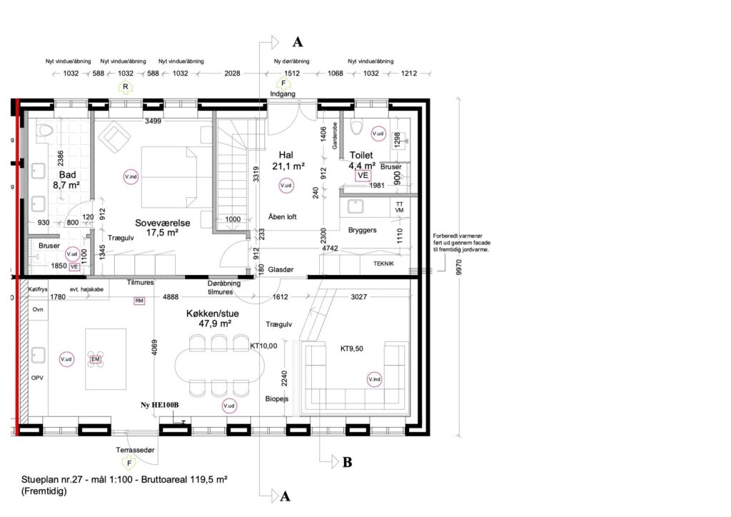
Totalombygning af en-familiebolig.

Ombygning og inddragelse af loftsetage til bolig på stuehusbygning i Vollerup