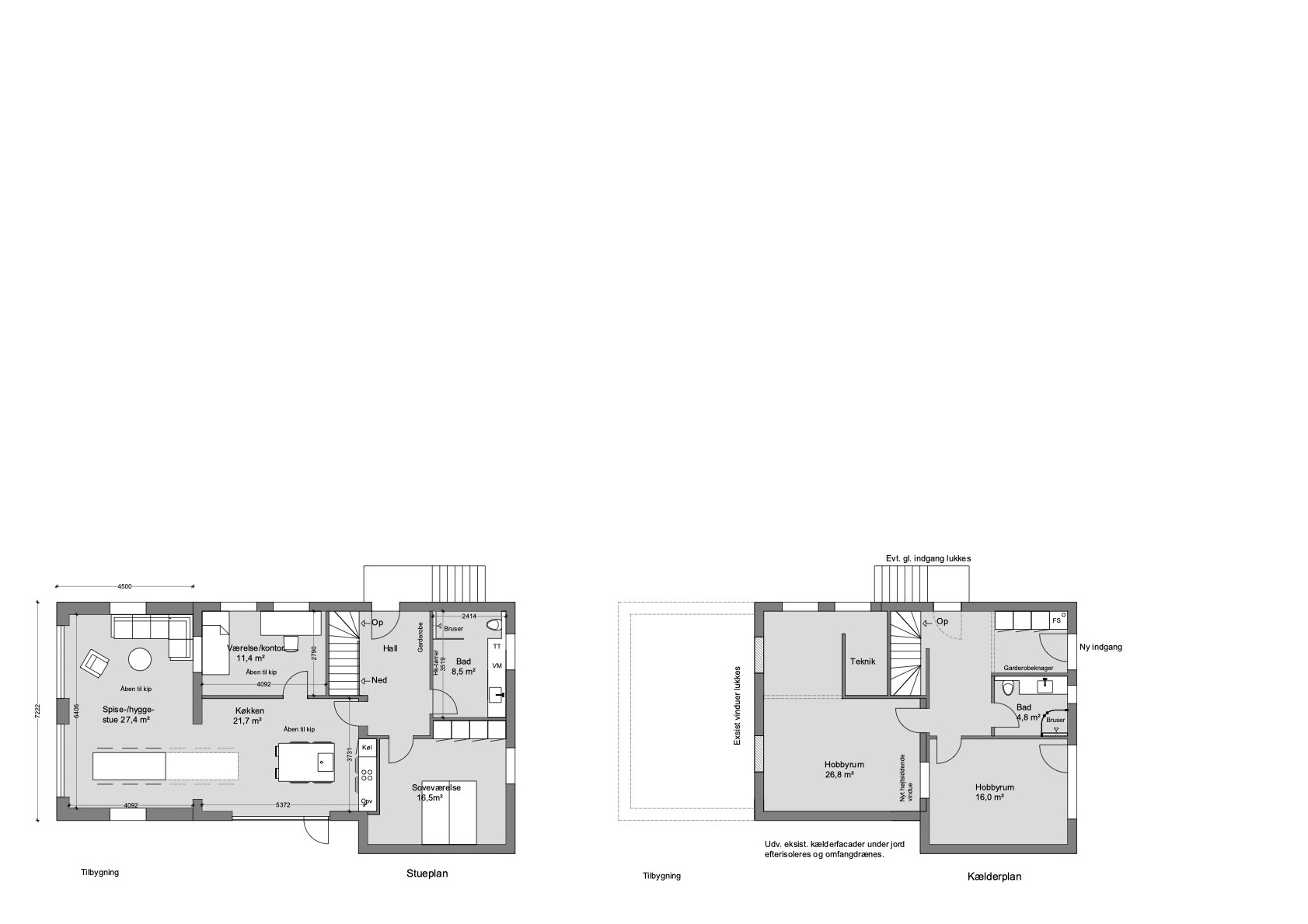
Tilbygning på en-familiebolig i Sønderborg - Fremtidige forhold