Ombygning af kontordomicil

Tilbage Ombygning af kontordomicil Udarbejdet planer Til ombygning af kontordomicil Facade Stueplan 1.salsplan Forrige Næste
Tilbygning/ombygning af sommerhus

Tilbage Tilbygning/ombygning af sommerhus Udarbejdet planer for tilbygning/ombygning af sommerhus Plantegning – Fremtidig forslag Facader – Fremtidige forhold Facader – Eksisterende forhold Forrige Næste
Til og ombygning af en familiebolig

Tilbage Til og ombygning af en familiebolig Udarbejdet planer for til- og ombygning af en familiebolig Facader – Fremtidige forhold Stueplan – Fremtidige forhold Kælderplan – Fremtidige forhold Eksisterende forhold Forrige Næste
Nybyggeri af flexbolig

Tilbage Nybyggeri af flexbolig Udarbejdet planer for nybyggeri af flexbolig Facader Plantegninger Forrige Næste
Ombygning af en familiebolig

Tilbage ombygning af en familiebolig Udarbejdet planer for ombygning af en familiebolig Fremtidige forhold Eksisterende forhold Forrige Næste
Tilbygning/ombygning af en familiebolig

Tilbygning/ombygning af en familiebolig Udarbejdet planer for tilbygning og ombygning af en familiebolig Facader Stueplan 1.sal Forrige Næste
Ombygning af ‘Min købmand’

Ombygning af ‘Min købmand’ Udarbejdet planer for ombyggelse af Min købmand Stueplan – Fremtidig forhold Stueplan – Eksisterende forhold Forrige Næste
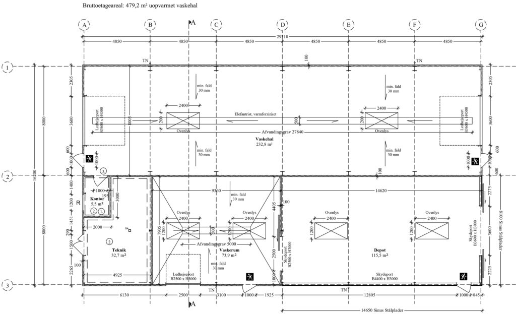
Stueplan, vaskehal – Plantegning

Ombygning og inddragelse af loftsetage til bolig på stuehusbygning i Vollerup
Ændret anvendelse af anneksbygning

Tilbage Ændret anvendelse af anneksbygning
Tilbygning på en-familiebolig i Sønderborg

Tilbage Tilbygning på en-familiebolig i Sønderborg – Fremtidige forhold